Make a new layer, use a color you haven’t used yet, a very thin line weight, and load a new dashed line. Call the new layer grid
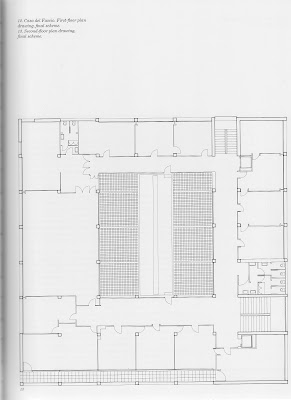
The Casa del Fascio works on a 15-3/4” grid system. To check your work draw a line horizontally across the top of one of the plans = 108’- 11-1/4”.
In the command line type: o
Then type: 15-3/4”
Your cursor should now be a square.
Select the 108’- 11-1/4”line and click underneath the line, you have just offset you line .
15-3/4”.
Now select the newly offset line and click under that line.
Repeat until you have covered the plan. You should see all of the columns and tile grid match up exactly on the lines (except for the bottom 2 lines of columns, they should be on the ½ ). And most of the walls should be either on the grid, or on the ½ or ¼.
Do the same on the vertical, except the line should = 108’ 3-1/3”
Your grid should be 83 by 82.5
Do the same for the elevations and sections. The overall height of the building is 56’-3.25” . All of the elevation lines should be on the grid or on the ½ , 1/3, or ¼.
Monday, August 31, 2009
Monday, August 24, 2009
Exercise 1
Download AutoCAD 2010 for free from the Autodesk website.
When installing the program, select “architecture” and enable the 3D drafting
functions.
Slowly roll your mouse arrow over the icons to see their tool names and brief definitions/examples.
Get familiar with the basic 2D drawing tools. In particular use the “polyline”, practice drawing freehand. The length and degrees will show in real-time.
Multi-variable set-up
1. command line:
mvsetup
2. Enable paper space?
N
3. Enter units type:
a = architectural units, 0’-0”
4. Enter the scale factor:
1 = Full
Then type 1 for paper height and 1 for width.
This will give you the basic workspace to start drawing.
Now when you draw with the “polyline” the real-time length
will be in meters.
To insert a jpg into the drawing space:
1.go to the insert tab
2.click attach and find the jpgs
3.open the ground floor plan
4.attach image using full path
5.place the jpg anywhere in the window and scale the jpg out.
To scale the drawing using the align tool.
1.draw a horizontal polyline or line 108’- 11-1/4”. long
2.on the drawing draw a line on the top of the plan, draw a polyline or line on the top black 3.border the length of the scale
4.select the jpg and the line on the jpg
5.type ‘al’ in the command line
6.for the first point select end point of the line on the jpg, then for the destination point select the same end point on the drawn line.
7.for the second point select the other side of the first line and then for the destination point select the same end point on the drawn line.
8.then select Y to “scale object on alignment point?”
The measurements of the drawing should be:
Foot print= 108’- 11-1/4”.horizontal x 108’ 3-1/3” vertical
The columns = 15-3/4”x15-3/4”
The large floor tiles= 2’-7 ½” x 6’6-3/4”
When installing the program, select “architecture” and enable the 3D drafting
functions.
Slowly roll your mouse arrow over the icons to see their tool names and brief definitions/examples.
Get familiar with the basic 2D drawing tools. In particular use the “polyline”, practice drawing freehand. The length and degrees will show in real-time.
Multi-variable set-up
1. command line:
mvsetup
2. Enable paper space?
N
3. Enter units type:
a = architectural units, 0’-0”
4. Enter the scale factor:
1 = Full
Then type 1 for paper height and 1 for width.
This will give you the basic workspace to start drawing.
Now when you draw with the “polyline” the real-time length
will be in meters.
To insert a jpg into the drawing space:
1.go to the insert tab
2.click attach and find the jpgs
3.open the ground floor plan
4.attach image using full path
5.place the jpg anywhere in the window and scale the jpg out.
To scale the drawing using the align tool.
1.draw a horizontal polyline or line 108’- 11-1/4”. long
2.on the drawing draw a line on the top of the plan, draw a polyline or line on the top black 3.border the length of the scale
4.select the jpg and the line on the jpg
5.type ‘al’ in the command line
6.for the first point select end point of the line on the jpg, then for the destination point select the same end point on the drawn line.
7.for the second point select the other side of the first line and then for the destination point select the same end point on the drawn line.
8.then select Y to “scale object on alignment point?”
The measurements of the drawing should be:
Foot print= 108’- 11-1/4”.horizontal x 108’ 3-1/3” vertical
The columns = 15-3/4”x15-3/4”
The large floor tiles= 2’-7 ½” x 6’6-3/4”
Syllabus
ARC 4058
Computer Applications in Architecture
Instructor: Erik P. Sundquist
Mondays and Wendsdays 6:25-7:40
e-mail: erik.sundquist@fiu.edu
Course Description:
The course will be organized as a series of software introduction seminars that will focus on computer applications in architecture concerning a technique driven mode of spatial and material production that would lead students towards a coherent final project. Students will be guided through the essentials of digital CAD drawing along with the basics of polygon and NURBS modeling. The course will follow with introductions to graphic presentation principles—drawing layout and rendering, lighting conditions, camera setup and the basics of material emulation.
Course Objectives:
The main educational value of this course is the development of an individual and successful architectural language that serves as a base for the following years in the School of Architecture. The class will serve as a source for graphic standards and will provide students with the digital skills that are necessary to progress toward a continually expanding repertoire of both abstract and pictorial, literal graphical and visual language.
Applied Software:
Auto CAD 2009 or 2010, Adobe Photoshop, Adobe Illustrator, Rhinoceros 4
(Free trial versions of these software can be downloaded from the web) V-Ray Plug in for Rhino.
Required Text:
Autocad and Its Applications: Basics by Terrence Shumaker
Inside Rhinoceros 4 (or version 3) by Ron K.C. Cheng
Course Evaluation:
Grading will be based on the University System.
The final grade will be determined on the following basis:
Class Participation (attendance + verbal participation +blog) 20%
Assignments 40%
Final Presentation 40%
Students will be evaluated upon performance in their assignments and projects; while a satisfactory grade in the course may be attained by the completion of all work required to the satisfaction of the professor. Individual initiative and investigation of design and research issues that extend beyond the basic requirements are strongly encouraged.
Grades:
94-100= A 87-89= B+ 80-83= B- 74-76= C 67-69= D+ 60-63= D-
90-93 = A- 84-86= B 77-79= C+ 70-73= C- 64-66= D 0-59 = F
Class Standards:
Attendance and class participation are required at all class meetings (see Course Schedule). Four (4) unexcused absences automatically result in a failing grade for the course. Every absence is 20% off of the attendance and
participation grade. Every day you are late, you will receive half (1/2) an absence. An acceptable excused absence is defined by the student having missed class due to extraordinary circumstances beyond his or her control and must be accompanied by written proof. In the event that you miss a class, you are responsible for all material covered. No late work will be accepted. Being absent at a final review will result in a failing grade.
Student Rights and Responsibilities:
It is the student’s responsibility to obtain, become familiar with, and abide by all Departmental, College and University requirements and regulations. These include but are not limited to:
-The Florida International University Catalog Division of Student Affairs Handbook of Rights and Responsibilities
-Departmental Curriculum and Program Sheets
-Departmental Policies and Regulations
Student Work:
The School of Architecture reserves the right to retain any and all student work for the purpose of record, exhibition and instruction. All students are encouraged to photograph and/or copy all work for personal records prior to submittal to instructor.
Civility Clause:Students and are expected to treat one another with a high degree of civility and respect. Students can and should expect the same from the instructor. If astudent fails to act responsibly or in a many that disrupts the class or impedes instruction for his/her colleagues, she or he may be asked to leave the class and will still be held responsible for all relevant information missed through this absence.Students With Special Needs:Students who may need auxiliary aids or services to ensure access to academic programs should register with the Office of Disability Services for Students.The following schedule is subject to change.
8/24- Introduction to AutoCAD 2010/ Assignment 1
8/26- Lab
8/31- AutoCAD layers line weights line types and tools / Assignment 2
9/02- Lab
9/07- No Class, Labor Day
9/09- Lab
9/14- AutoCAD plotting/ Photoshop/Illustrator / Assignment 3, Assignment 1 and 2 Due
9/16- Lab
9/21- Lab
9/23- Lab
9/28- Lab
9/30- Lab
10/05- Introduction to Rhino, importing drawings/ Assignment 4/ Assignment 3 Due
10/07- Lab
10/12- Rhino building blocks and bolean / Assignment 5/ Assignment 4 Due
10/14- Lab
10/16- Last day to drop class with DR
10/19- Rhino tools and materials/ Assignment 5 Due
10/21- Lab
10/26- Rhino v-ray/ Assignment 6
10/28- Lab
11/02- V-Ray Photoshop/ Assignment 6 Due
11/04- Lab
11/09- Photoshop
11/11- No Class- Veteran’s Day
11/16- Final Assignment
11/18-Lab
11/23- Pre final
11/25- No Class
11/30- Lab
12/02-Final Due
Computer Applications in Architecture
Instructor: Erik P. Sundquist
Mondays and Wendsdays 6:25-7:40
e-mail: erik.sundquist@fiu.edu
Course Description:
The course will be organized as a series of software introduction seminars that will focus on computer applications in architecture concerning a technique driven mode of spatial and material production that would lead students towards a coherent final project. Students will be guided through the essentials of digital CAD drawing along with the basics of polygon and NURBS modeling. The course will follow with introductions to graphic presentation principles—drawing layout and rendering, lighting conditions, camera setup and the basics of material emulation.
Course Objectives:
The main educational value of this course is the development of an individual and successful architectural language that serves as a base for the following years in the School of Architecture. The class will serve as a source for graphic standards and will provide students with the digital skills that are necessary to progress toward a continually expanding repertoire of both abstract and pictorial, literal graphical and visual language.
Applied Software:
Auto CAD 2009 or 2010, Adobe Photoshop, Adobe Illustrator, Rhinoceros 4
(Free trial versions of these software can be downloaded from the web) V-Ray Plug in for Rhino.
Required Text:
Autocad and Its Applications: Basics by Terrence Shumaker
Inside Rhinoceros 4 (or version 3) by Ron K.C. Cheng
Course Evaluation:
Grading will be based on the University System.
The final grade will be determined on the following basis:
Class Participation (attendance + verbal participation +blog) 20%
Assignments 40%
Final Presentation 40%
Students will be evaluated upon performance in their assignments and projects; while a satisfactory grade in the course may be attained by the completion of all work required to the satisfaction of the professor. Individual initiative and investigation of design and research issues that extend beyond the basic requirements are strongly encouraged.
Grades:
94-100= A 87-89= B+ 80-83= B- 74-76= C 67-69= D+ 60-63= D-
90-93 = A- 84-86= B 77-79= C+ 70-73= C- 64-66= D 0-59 = F
Class Standards:
Attendance and class participation are required at all class meetings (see Course Schedule). Four (4) unexcused absences automatically result in a failing grade for the course. Every absence is 20% off of the attendance and
participation grade. Every day you are late, you will receive half (1/2) an absence. An acceptable excused absence is defined by the student having missed class due to extraordinary circumstances beyond his or her control and must be accompanied by written proof. In the event that you miss a class, you are responsible for all material covered. No late work will be accepted. Being absent at a final review will result in a failing grade.
Student Rights and Responsibilities:
It is the student’s responsibility to obtain, become familiar with, and abide by all Departmental, College and University requirements and regulations. These include but are not limited to:
-The Florida International University Catalog Division of Student Affairs Handbook of Rights and Responsibilities
-Departmental Curriculum and Program Sheets
-Departmental Policies and Regulations
Student Work:
The School of Architecture reserves the right to retain any and all student work for the purpose of record, exhibition and instruction. All students are encouraged to photograph and/or copy all work for personal records prior to submittal to instructor.
Civility Clause:Students and are expected to treat one another with a high degree of civility and respect. Students can and should expect the same from the instructor. If astudent fails to act responsibly or in a many that disrupts the class or impedes instruction for his/her colleagues, she or he may be asked to leave the class and will still be held responsible for all relevant information missed through this absence.Students With Special Needs:Students who may need auxiliary aids or services to ensure access to academic programs should register with the Office of Disability Services for Students.The following schedule is subject to change.
8/24- Introduction to AutoCAD 2010/ Assignment 1
8/26- Lab
8/31- AutoCAD layers line weights line types and tools / Assignment 2
9/02- Lab
9/07- No Class, Labor Day
9/09- Lab
9/14- AutoCAD plotting/ Photoshop/Illustrator / Assignment 3, Assignment 1 and 2 Due
9/16- Lab
9/21- Lab
9/23- Lab
9/28- Lab
9/30- Lab
10/05- Introduction to Rhino, importing drawings/ Assignment 4/ Assignment 3 Due
10/07- Lab
10/12- Rhino building blocks and bolean / Assignment 5/ Assignment 4 Due
10/14- Lab
10/16- Last day to drop class with DR
10/19- Rhino tools and materials/ Assignment 5 Due
10/21- Lab
10/26- Rhino v-ray/ Assignment 6
10/28- Lab
11/02- V-Ray Photoshop/ Assignment 6 Due
11/04- Lab
11/09- Photoshop
11/11- No Class- Veteran’s Day
11/16- Final Assignment
11/18-Lab
11/23- Pre final
11/25- No Class
11/30- Lab
12/02-Final Due
Subscribe to:
Comments (Atom)







